Bereits die Topographie macht den Standort für einen 2. Vollsortimenter fragwürdig. Der Hang am Standort ist steil. Steile Zufahrten machen das Projekt untauglich für Fußgänger. Die Vorschriften für barrierefreies Bauen werden mit Müh und Not eingehalten. Um den PArkplatz in den Waldhang zu fräsen wird eine ca. 80m lange Betonstützmauer benötigt.

Der geplante Vollsortimenter soll in den bewaldeten Steilhang unterhalb der Kuckuckstraße platziert werden. Quelle: Schallschutzgutachten


Fußweg an der Untergrenze der Anforderungen für barrierefreies Bauen.

Die Detailplanung: Vorgesehen auch „3 Fahnenmasten“
Der geplante zweite Vollsortimenter wird am Teilsrain mangels eines wirklich geeigneten Standorts im Gemeindegebiet an einen Steilhang platziert. Hierzu schreibt der Gutachter der städtebaulichen ISEK-Feinstudie „Am Teilsrain“:
„Die Topografie des Untersuchungsgebiets ist problematisch. Das Gebiet fällt von der Etterschlager Straße Richtung Osten um ca. 5 Meter. Die bewaldete Hangkante am südlichen Rand des Grundstücks stellt ebenfalls eine topografische Barriere dar. Der Höhenunterschied beträgt hier in Teilbereichen bis zu ca. 7 Meter.“
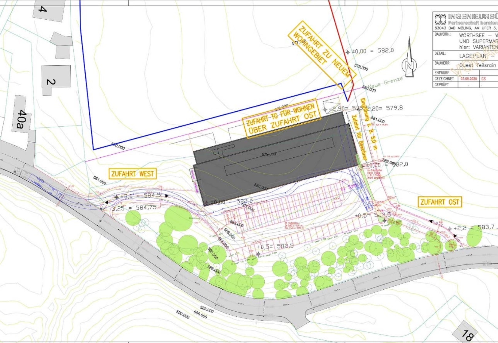
Die ungünstige Platzierung des geplanten Vollsortimenters am Steilhang unterhalb der Kuckucksstraße führt zu sehr steilen Zufahrten mit einem Gefälle von 7%. Im Bereich der Zufahrt Tiefgarage steigt die Neigung sogar bis 10% parallel zum Gebäude. (Quelle: Planung Terrabiota, Schallschutzgutachten S. 5 und S. 25). Das bedeutet nicht nur erhöhten Lärm durch Automotoren, sondern auch eine hohe Belastung durch die im Winter nötige Salzstreuung. Ohne mehrfaches Streuen am Tag würden diese schattigen Zufahrten an einem steilen, und (noch) bewaldeten Nordhang häufig vereisen.
Fußgänger sollen den Markt über eine Treppe erreichen
In unmittelbarer Nachbarschaft zum geplanten Vollsortimenter soll ein Seniorenzentrum entstehen. Von den Befürwortern des Projekts wird gerne argumentiert, dass die Senioren in dem geplanten Markt bequem einkaufen können. Einer der beiden Fußwege zum neuen Gebäude weist allerdings eine Treppe auf, die den Höhenunterschied von etwa 3 Metern überwindet. Klar sollen wir uns fit halten, aber als bequem fußläufig zu erreichende Einkaufsmöglichkeit, insbesondere für Senioren, kann man das nicht verkaufen. In der neuesten Planung wurde, um die Barrierefreiheit zu erreichen, ein zweiter Fußweg angelegt.
Der zweite Fußweg entspricht eben noch der Untergrenze für barrierefreies Bauen
Behinderte sollen über eine 46 Meter langgezogene Rampe mit einem Gefälle von 6% zum Markt hinunter und wieder zurück. Das Gefälle dieses Weges entspricht so eben noch der laut DIN 18040-1 maximal für barrierefreie Zugänge tolerierbaren Neigung. Bei einer Straßen-Höhen-Kote von 584,75 m ü. NN. und einer Höhenkote von 582 m ü. NN Ecke Vollsortimenter ergibt sich eine Höhendifferenz von 2,75 m – damit etwa 46 m Länge der Zuwegung bei 6 % Neigung. Die vorgeschriebenen Zwischenpodeste mit höchstens 3% Neigung werden hoffentlich nicht vergessen. Ob ein „Pflasterbereich“ der Vorschrift „leicht und erschütterungsfrei zu befahren“ entspricht? Viele Erdbewegungen und Baumfällungen werden jedenfalls notwendig, um einen ungünstigen Standort doch noch irgendwie zu ertüchtigen.
80 Meter Betonstützmauer
Der Parkplatz und die Zufahrt benötigen mindestens etwa 80 Meter Betonmauer. Sie dürfte zwischen einem Meter 50 und 2 Meter hoch 40 Zentimeter stark werden. Mit Fundament eine gewaltige Menge Beton. Von wegen ökologische Holzhütte!

Hinterlasse einen Kommentar